Детали для крепления трубопроводов к строительным конструкциям — расчет и расход

Профессиональный крепеж трубопроводов к строительным конструкциям дело не простое, но по силам многим.
Строгое соблюдение монтажных нормативов позволяет не только минимизировать риск повреждения трубопровода, но также значительно повышает срок эксплуатации и удобство обслуживания.
При выборе способа фиксации трубопроводов и крепежных элементов, необходимо учитывать технические характеристики используемых при обустройстве материалов, включая вес, а также склонность к температурным расширениям.
Ассортимент крепежных средств

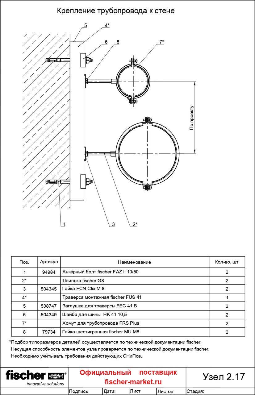
В процессе монтажа металлопластиковых труб для водопровода своими руками любого типа используются специальные подвески или опоры, которые должны дополняться кронштейнами, планками, хомутами, консолями и закладными деталями.
Вне зависимости от конструктивных особенностей креплений, они, обязательно, должны быть:
- высококачественными и, максимально, надежными, пригодными для многократного применения, в соответствии с основным назначением;
- функциональными и способными выдерживать повышенные нагрузки;
- унифицированными, а также универсальными в применении;
- устойчивыми к механическим повреждениям и коррозийным изменениям под воздействием любых неблагоприятных внешних факторов.
Внимание нужно уделять доступности элементов для выполнения самостоятельного монтажа и последующего обслуживания.
На сегодняшний день практикуется использование нескольких основных видов трубного крепежа, которые отличаются несколькими параметрами (видео монтажа труб из сшитого полиэтилена посмотрите здесь).
По способу применения
Эксплуатационные особенности и конструкционные характеристики напрямую влияют на выбор крепления:
- подвижные, сохраняющие подвижность трубы по оси в процессе температурной деформации.
Такие крепежи востребованы при монтаже полимерных трубопроводов и прокладке внутри подземных каналов;

А вы знаете, какой лучше купить стальной отвод на 90 градусов? В полезной статье описаны технические характеристики фасонины из чугуна, нержавейки и цветного металла.
Посмотрите фото схемы обвязки твердотопливного котла отопления полипропиленом на этой странице.
Трубопроводные подвески представлены несколькими деталями, способными равномерно распределять нагрузку, вызываемую весом трубопровода.
Такие элементы используются с целью предотвращения перегрузки на отдельных опорах.
По особенностям монтажа
В зависимости от особенностей монтажных работ и основных конструктивных характеристик, крепления для труб могут быть представлены следующими видами:

- бескорпусные;
- приварного корпусного типа;
- корпусные хомутового типа;
- щитовые.
Бескорпусной вариант представлен стандартными хомутами, плотно прилегающими к основанию.
Особенностью приварных опор с корпусом является крепление к стальной трубе посредством сварки.
Хомутовая корпусная опора с плоским креплением применяется на предизолированных стальных трубах.
[note]Корпусная опора хомутового типа с округлым креплением используется на стальных трубопроводах.[/note]
Правила выбора аксессуаров
Оптимальный крепеж должен выбираться с учётом нескольких факторов, включая материал трубопровода, назначение системы и её расположение:
- при необходимости выполнить термоизоляцию трубы, лучше всего использовать кольцевые опоры, имеющие крепежные пластины и удлиненную резьбу.
Стандартные полимерные крепления, в этом случае, не способны обеспечить необходимое пространство между трубной оболочкой и прилегающей плоскостью;

А что вы знаете про канализационные насосные станции (КНС) Грундфос? В полезной статье написано, в каких случаях надо устанавливать оборудование в частном домовладении.
Как установить компрессор для септика своими руками, прочитайте здесь.
На странице: https://ru-canalizator.com/vodosnabzhenie/oborudovanie/aeratsiya.html описана аэрационная колонна в сборе.
В процессе самостоятельной установки обязательно должна быть учтена сила вертикального давления.
Нужно запомнить, что для крепления металлических труб рекомендуется использовать металлические хомуты, а на пластиковых трубопроводах достаточно применять пластиковые хомуты.
Кроме всего прочего, с целью сохранения целостности конструкции, предотвращения её провисания и изгибов, а также равномерного распределения веса по всей длине, требуется обеспечить компенсацию расширения (коэффициент для полипропиленовых труб армированных стекловолокном узнайте на этой странице).
Фиксация пластиковых трубопроводов

Пластиковые трубопроводы относятся к категории наиболее популярных и распространённых конструкций, при креплении которых, должны быть учтены следующие требования:
- применение компенсаторов и специальной конструкции фиксирующих хомутов, что обусловлено значительным линейным расширением на прямых трубопроводных участках.
Опорные крепления, например, при обвязке радиатора отопления (схемы), должны обеспечить свободное перемещение труб; - необходимы плоские хомуты на креплениях с прокладкой или закругленными краями и гладкой внутренней поверхности, что обусловлено риском механических повреждений и повышенной чувствительностью к любым резам;
- поверхность, соприкасающаяся с трубными конструкциями, должна быть гладкой, без заострений и сильных выпуклостей;
- нельзя использовать жесткое крепление полимерных трубопроводов с применением хомутов на неподвижные опоры.
Для закрепления используются следующие виды опор и подвесок:
- лишенные сплошного основания – для любых вариантов трубопроводов с температурой рабочей и окружающей среды в пределах 30°С;
- имеющие сплошное основание – для любых вариантов трубопроводов с температурой рабочей и окружающей среды выше 30°С (какое расстояние между трубами теплого водяного пола, прочитайте здесь).
Стандартное расстояние между опорными элементами и монтируемыми подвесками устанавливается при помощи расчетов или нормативно-технических требований (примеры монтажа полипропиленовых труб посмотрите на этой странице).
Нормативно-технические требования
В настоящее время единая документация относительно опор и подвесок трубопроводов отсутствует, поэтому нужно ориентироваться на конструкторские данные, представленные ОСТами или чертежами.
| Диаметр | Расстояние между подвесками и опорами | |||||||
| Горизонтального расположения | Вертикального расположения | |||||||
| Полиэтилен высокого давления | ПНД, полипропилен | ПВД-трубы | ПНД-трубы | |||||
| Легкая | Средняя | Тяжелая | Легкая | Средняя | Тяжелая | |||
| 16мм | 30см | 30см | 35см | — | — | 45см | 40см | 45см |
| 20мм | 35см | 40см | 40см | — | — | 60см | 50см | 60см |
| 25мм | 40см | 45см | 45см | — | 65см | 70см | 70см | 75см |
| 32мм | 45см | 50см | 55см | 60см | 70см | 80см | 90см | Метр |
| 40мм | 50см | 60см | 65см | 70см | 80см | 95см | 1,1м | 1,3м |
| 50мм | 60см | 70см | 80см | 80см | 95см | 1,1м | 1,4м | 1,6м |
| 63мм | 70см | 80см | 90см | 90см | 1,1м | 1,3м | 1,7м | Два метра |
| 75мм | 80см | 90см | — | Метр | 1,2м | 1,4м | 2 метра | 2,4м |
| 90мм | 90см | Метр | — | 1,1м | 1,4м | 1,6м | 2,6м | 2,9м |
| 1,1м | Метр | 1,2м | — | 1,2м | 1,2м | 1,5м | 1,8м | 3,5м |

Полимерные трубопроводы могут ранжироваться в соответствии с наружным диаметром, что отражается на типе применяемых креплений.
Все крепления маркируются, согласно их экспликации (технологию монтажа пластиковых труб системы отопления узнайте здесь).
Для фиксирования трубопроводов, целесообразно, с экономической точки зрения, использовать универсальные аксессуары.
Данные для крепежей с двумя винтами.
| Диаметр | Размеры | Гайка |
| 20 мм | 20-23 мм | М8 |
| 25 мм | 25-28 мм | М8 |
| 32 мм | 32-35 мм | М8 |
| 40 мм | 38-42 мм | М8 |
| 50 мм | 47-51 мм | М8 |
| 63 мм | 59-64 мм | М8 |
| 75 мм | 74-80 мм | М10 |
| 90 мм | 87-92 мм | М10 |
| 110 мм | 113-118 мм | М10 |
[note]Следует отметить, что крепление трубопровода к строительным конструкциям при помощи строительно-монтажного пистолета, может осуществляться только при наличии письменного разрешения строительных организаций и только в строго определенных местах.[/note]
Посмотрите, как устанавливается крепежная планка для трубопровода в ванной комнате.
- ← Технология монтажа металлопластиковых водопроводных труб своими руками в частном доме
- Защитная, регулирующая и запорная арматура для трубопроводов — установка и ремонт →
https://ru-canalizator.com/santehnika/aksessuary/kreplenie.html